Когда речь заходит о бане, многие их владельцы чаще всего начинают разглагольствовать на тему ее возведения и отделки. Но, как говориться, не это главное. Сердцем бани всегда являлась печь, которая и отопит постройку, и нагреет воду для помывки. О том, как правильно выбрать банную печь написано немало. Нас же в этой статье будут интересовать уникальные модели – это печи для бани с теплообменником. Каково их устройство, и каков принцип работы – об это и будем говорить.


Предназначение
Начнем с того, что основное назначение банной печи с теплообменником – это отопление помещения, плюс нагрев воды. Но есть и дополнительные функции, которые можно использовать, если в этом появляется необходимость. К примеру, можно установить в предбаннике радиаторы отопления и завязать их к теплообменнику агрегата. По сути, у вас получится настоящая водяная отопительная система.
И все же в основе своей любая банная печь – это нагревательный прибор, поэтому в независимости от ее модификации необходимо учитывать при выборе основные ее параметры. А это мощность и тепловая отдача. Все остальное это дополнение.
Конструктивные особенности
В настоящее время производители предлагают два варианта печей для бань, в которых установлен теплообменник.
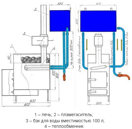
- Это встроенная емкость, из которой выходит два патрубка, соединяемых с резервуаром. Последний заполняется водой для помывки.
- Это внешняя емкость, расположенная на дымоходе самой печи. Чаще всего она и является резервуаром, из которого можно брать воду для помывки.
Давайте более подробно рассмотрим каждый вариант по отдельности.


Вариант №1
Итак, что собой представляет теплообменник для банной печи встроенного типа. Это небольшая емкость, чаще всего объемом не больше пяти литров, которая встроена в кожух печки и расположена между топкой и корпусом агрегата. В данном случае должно выполняться одно строгое правило – никакого соприкосновения с открытым пламенем огня.
Но так как температура внутри топки дровяной печи очень высокая, ее хватает, чтобы нагреть воду почти до кипения. При этом начинают действовать законы физики. Горячая вода по верхнему патрубку поднимается вверх и перемещается по трубопроводу в отдельно стоящую емкость, где происходит нагрев воды для помывки. Внутри второй емкости установлен змеевик, по которому теплоноситель и циркулирует. Остывая, теплоноситель опускается вниз и выходит по нижнему патрубку, перемещаясь в нижний патрубок первой емкости. Затем цикл повторяется.


У многих может возникнуть вопрос, почему теплообменник в печке – это емкость, а не змеевик? Опять-таки все дело в температуре в топке отопительного прибора. Дровяные печи являются самыми мощными в плане выделения тепловой энергии, поэтому они быстро и интенсивно нагревают воду. В змеевике она просто начнет закипать, а для того чтобы сдерживать такой натиск температуры, необходим определенный объем воды. Хотя это не жесткое правило, на практике в самодельных банных печках мастера используют и змеевики из нержавеющих труб.
Внимание! Емкость второго резервуара может доходить до 120 литров. И этого количества воды с лихвой хватить на несколько человек.
Вариант №2
Эта конструкция в разы проще первой. Кстати, чтобы вы поняли, о чем идет речь, посмотрите на фотографию ниже. На ней несколько моделей теплообменников, установленных на дымоходную трубу.


По сути, получается так: собирается отдельный теплообменный прибор, в который через днище и крышку вставляется металлический патрубок. Он в свою очередь будет являться продолжением дымоходной трубы. Чаще всего эту конструкцию надевают на патрубок отводящих угарных газов, который находится в конструкции самой печки. Встроенная в теплообменный бак труба по диаметру должна быть больше, чем торчащий из печки патрубок.
Внимание! Очень важный момент – стыки между днищем и трубой, между крышкой и трубой должны быть герметичными.
Теперь к вопросу, какой вариант лучше? Не хотелось бы ставить вопрос таким образом, ведь обе модели присутствуют на рынке. А, значит, у каждой из них есть свой потребитель. Владельцы бань подбирают модель под определенные условия эксплуатации. Хотя необходимо отметить вот какой факт. Второй вариант в плане экономии топлива эффективнее. Почему? Все дело в том, что дровяные печи имеют коэффициент полезного действия не выше 65%. То есть, 35% уходит в дымоход на улицу. А установленный на дымоходной трубе теплообменник сокращает тепловые потери, отбирая тепло для нагревания воды. А это, скажем прямо, большой плюс, да и экономия топлива получается немалой.


Печь с теплообменником своими руками
Сооружение печей с теплообменником для дома или бани можно провести своими руками. Специалисты уверяют, что ничего сложного в этом нет. Но самое главное во всем этом процессе – сделать правильный расчет мощности прибора. Практика показывает, что, даже проведя точный расчет, практически невозможно точно подобрать размеры самого теплообменного прибора. Его габариты все равно будут приблизительными.
К примеру, чтобы отопить небольшую баню, потребуется всего 5 кВт тепловой энергии. Чтобы нагреть воду в теплообменнике, потребуется приблизительно один квадратный метр площади, что соответствует 9 кВт тепла. А так как мощность дровяной печки падает достаточно быстро, надо будет взять размеры с небольшим припуском. После чего, учитывая все выкладки, можно своими руками изготовить теплообменник для печи.


Вот все, что касается банных печей, в состав которых входит теплообменный аппарат. Как было сказано выше, надо правильно подойти к выбору модели и ее мощности.