Облагораживание дачного участка начинается со строительства туалета. Сделать туалет шалаш на даче своими руками не составит большого труда. Полет фантазии, наличии материалов и инструмента запросто приводят к осуществлению задуманного.
Выбираем место
Здесь больших проблем не возникает, но определенные нюансы учитывать надо:
- глубина залегания грунтовых вод;
- особенности участка;
- роза ветров.
При глубине залегания грунтовых вод до 2 м от придется отдать предпочтение биотуалету или пудр-клозету. Если их глубина превышает 2,5 м – можно копать выгребную яму.


С учетом особенностей участка выбираем место для постройки. Здесь же обращаем внимание на преобладание направления ветра.
К сведению. Пудр-клозет подразумевает устройство под стульчаком емкости (ведро, бочка, ящик) без выгребной ямы.
Конструкция туалета «Шалаш»
Такой тип конструкции вобрал в себя массу положительных качеств. Он прост конструктивно, обладает минимальными затратами материалов, высокой прочностью и стойкостью к атмосферным осадкам. Наиболее распространенным материалом для постройки является дерево. Понадобятся брус для каркаса 50*50, доска 20 обрезная, доска 40 обрезная, доска 20-30 не обрезная. При желании боковые стенки можно покрыть любым жестким кровельным материалом. В этом случае не обрезная доска понадобится. Во всех остальных можно обойтись без нее.


Перед тем, как приступать к строительству, нужно определиться с вопросом наличия выгребной ямы. Обычно ее копают в длину и ширину по 1,5 м. Глубина — от 1,5 до 3 м. Но эти размеры не принципиальны. Их можно изменять в любую сторону в зависимости от конкретного места расположения туалета. Дно и стенки можно сделать бетонными или обложить кирпичом. В большинстве случаев в нее устанавливается любая готовая емкость. Например, металлическая 200 литровая бочка с вырезанным верхом.
Делать фундамент под всю конструкцию или нет, как говорится, дело хозяйское. В некоторых случаях в нем необходимости нет. Все зависит от места, где будет находиться туалет. Но в любом случае устанавливать его на землю без изолирующей подкладки не рекомендуется.
Этапы строительства
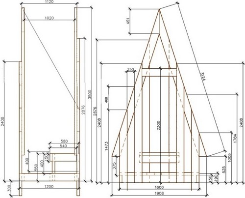
Чтобы без ошибок и переделывания построить туалет шалаш на даче своими руками понадобятся чертежи. При выполнении работ они окажут неоценимую помощь. В них кроме вида частей туалета, последовательности выполнения работ, будет отражено количество необходимого материала и его размеры.


Выполнив чертеж будущего туалета начинаем готовить элементы сборки. Для этого понадобятся пила, рубанок и рулетка. Когда все элементы заготовлены, можно собирать их воедино. Здесь уже больше нужны будут молоток и гвозди. Или саморезы и отвертка.
Монтаж
Рассмотрим его пошаговое выполнение:
- на фундамент укладываем влагоизолирующий материал;
- собираем нижний каркас;
- делаем прорезь технологического отверстия;
- собираем переднюю и заднюю стенки;
- прибиваем обрешетку на боковые стенки;
- укладываем кровельный материал.
На этом основные этапы строительства можно считать завершенными. Впереди доделочные работы. Их выполнение не вызывает больших затруднений, но отнимает немало времени.
Влагоизолирующий материал на фундамент. Для этого подойдет рубероид, сложенный в два-три слоя. Его можно заменить целлофановой пленкой или линолеумом, но с учетом того, что они могут растрескаться в сильный мороз, такая замена нецелесообразна.
Для сборки нижнего каркаса используем брус 50*50 и доску 40. Размеры выбираем реальные, если в них есть отступления от чертежа, изображенного на фото.
Технологическое отверстие выполняется произвольной формы, диаметром не менее 30 см.
Изготовление передней и задней стенок производится на отдельной площадке, по избранным размерам. Для каркаса используется имеющийся брус. Как вариант, его можно делать из обрезной доски 30. После окончательного изготовления стенок они устанавливаются на нижний каркас.




После установки стенок они соединяются обрешеткой. Если планируется боковые стенки обшивать кровельным материалом, то для обрешетки используется не обрезная доска 20.
На этом выполнение сложных и ответственных работ можно считать законченным. Осталось стенки обить вагонкой, навесить двери, сделать конек скатов. В завершении всю конструкцию обработать антисептиком и покрасить.
Совет. При строительстве туалета не рекомендуется использовать металлический профнастил в качестве кровли боковых стенок.
Построить туалет на даче типа шалаш совсем не сложно. Вдобавок экономично. А если хорошо продумать эту тему, то можно получить и украшение дачного ландшафта. При работающей фантазии можно легко спроектировать туалет собственного дизайна.


Хорошим подспорьем при работе станет просмотр видеоролика на эту тему: